弹簧微启封闭式高压安全阀
一、弹簧微启封闭式高压安全阀 概述
A41Y-160、320型弹簧微启封闭式高压安全阀适用于工作温度≤200℃空气、氮氢混合气、水等介质的设备和管路上。A41Y-160P/320P、A41Y- 160R/320R型适用于工作温度≤200℃有腐蚀性的气体或液体介质的设备和管路上,作为超压?;ぷ爸?。连接法兰按JB/T2769-92的标准。
二、弹簧微启封闭式高压安全阀 结构简述
1、弹簧微启式安全阀具有结构简单、密封性能好、开启压力准确、排放能力大、回座压差小、调整方便等特点。
2、喷嘴型阀座:阀座为位伐尔喷嘴型阀座,蒸汽流经阀座出口处时达到音速,排放系数大,阀座密封面堆焊钴铬钨硬质合金,耐磨抗冲蚀,寿命长。
3、热弹性阀瓣:阀瓣设计为热弹性结构,利用其在介质压力下微小的变形,提高密封能力,克服安全阀在介质压力下临近整定压力时的前泄现象。阀瓣密封面采用先进的激光淬火技术,提高了硬度、耐磨性、抗冲抗性。
4、调节螺母:通过调整调节螺母,调整弹簧压缩量,使阀门能够很方便、很迅速地获得准确的整定压力。
5、背压调整套:调整阀瓣背压的辅助机构,通过背压调整套调整,可获得合适的回座压差。上调时,使阀门背压降低。下调时,使阀门背压提高。
 |
 |
弹簧微启封闭式高压安全阀 |
弹簧微启封闭式高压安全阀 |
三、弹簧微启封闭式高压安全阀 安装说明
1、安全阀必须垂直安装,并最好直接安装在容器或管道的接头上。接头内径应不小于安全阀的进口通径。
2、安全阀的出口必须装设适当的膨胀节,以防止排放管的热膨胀给安全阀带来不应有的热应力。排放管内径应比阀门出口直径大,长度尽可能短,避免拐弯。排放管及膨胀节重量不应作用在安全阀上,应固定在建筑上。排放管的中心线与阀体的中心线间距离尽可能的短。对每台安全阀都应单独装设排放管。
3、消声器的出口处要有足够的面积,防止产生背压影响阀门的排放能力。
四、弹簧微启封闭式高压安全阀 主要零部件材料
NO |
零件名称 |
A41Y-160材料 |
A41Y-160P材料 |
A41Y-160R材料 |
1 |
法兰 |
35/35CrMoA |
2Cr13 |
1Cr18Ni9Ti |
2 |
阀座 |
2Cr13 |
1Cr18Ni9Ti |
1Cr18Ni12Mo2Ti |
3 |
阀体 |
35/40 |
1Cr18Ni9Ti |
1Cr18Ni12Mo2Ti |
4 |
阀瓣 |
2Cr13 |
1Cr18Ni9Ti |
1Cr18Ni12Mo2Ti |
5 |
导向套 |
2Cr13 |
1Cr18Ni9Ti |
1Cr18Ni12Mo2Ti |
6 |
弹簧 |
50CrVA |
50CrVA包覆氟塑料 |
50CrVA包覆氟塑料 |
7 |
阀杆 |
2Cr13 |
1Cr18Ni9Ti |
1Cr18Ni12Mo2Ti |
8 |
阀盖 |
ZG230-450 |
1Cr18Ni9Ti |
1Cr18Ni9Ti |
9 |
调整螺杆 |
45 |
2Cr13 |
2Cr13 |
10 |
阀帽 |
ZG200-400 |
1Cr18Ni9Ti |
1Cr18Ni9Ti |
|
阀座、阀瓣密封面 |
堆焊Co基硬质合金 |
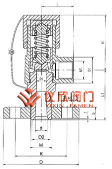
五、弹簧微启封闭式高压安全阀 外形尺寸和连接尺寸
 |
 |
弹簧微启封闭式高压安全阀结构图 |
弹簧微启封闭式高压安全阀结构图 |
型号 |
公称
通径 |
do |
d |
M |
D |
K |
Z-¢d |
b |
d1 |
M1 |
D1 |
K1 |
Z1-¢d1 |
b1 |
L |
L1 |
≈H |
A41Y-160
(单法兰) |
15 |
8 |
20 |
M24×2 |
95 |
60 |
3-18 |
20 |
/ |
M33×2 |
36 |
/ |
/ |
/ |
50 |
80 |
85 |
20 |
10 |
25 |
M27×2 |
95 |
60 |
3-18 |
20 |
/ |
M33×2 |
48 |
/ |
/ |
/ |
50 |
80 |
85 |
25 |
12 |
28 |
M33×2 |
105 |
68 |
3-18 |
20 |
/ |
M33×2 |
48 |
/ |
/ |
/ |
50 |
80 |
85 |
A41Y-160 |
10 |
8 |
18 |
M24×2 |
95 |
60 |
3-18 |
20 |
29 |
M42×2 |
115 |
80 |
4-18 |
22 |
95 |
100 |
261 |
15 |
8 |
20 |
M24×2 |
95 |
60 |
3-18 |
20 |
29 |
M42×2 |
115 |
80 |
4-18 |
22 |
95 |
100 |
261 |
20 |
10 |
27 |
M33×2 |
105 |
68 |
3-18 |
20 |
29 |
M42×2 |
115 |
80 |
4-18 |
22 |
95 |
100 |
261 |
25 |
12 |
28 |
M33×2 |
105 |
68 |
3-18 |
20 |
50 |
M64×3 |
165 |
115 |
6-26 |
32 |
130 |
135 |
285 |
32 |
12.14.16 |
37 |
M42×2 |
115 |
80 |
4-18 |
22 |
50 |
M64×3 |
165 |
115 |
6-26 |
32 |
130 |
135 |
285 |
40 |
20 |
47 |
M52×2 |
165 |
115 |
6-26 |
28 |
65 |
M80×3 |
200 |
145 |
6-29 |
40 |
165 |
165 |
350 |
50 |
25 |
58 |
M64×3 |
165 |
115 |
6-26 |
32 |
80 |
M100×3 |
225 |
170 |
6-33 |
80 |
165 |
165 |
380 |
A41Y-320 |
10 |
8 |
18 |
M24×2 |
95 |
60 |
3-18 |
20 |
29 |
M42×2 |
115 |
80 |
4-18 |
22 |
95 |
100 |
261 |
15 |
8 |
27 |
M33×2 |
105 |
68 |
3-18 |
20 |
29 |
M42×2 |
115 |
80 |
4-18 |
22 |
95 |
100 |
261 |
20 |
10 |
30 |
M36×2 |
110 |
75 |
3-18 |
20 |
29 |
M42×2 |
115 |
80 |
4-18 |
22 |
95 |
100 |
261 |
25 |
12 |
35 |
M42×2 |
115 |
80 |
4-18 |
22 |
50 |
M64×3 |
165 |
115 |
6-26 |
32 |
130 |
135 |
285 |
32 |
12.14.16 |
41 |
M48×2 |
135 |
95 |
4-22 |
25 |
50 |
M64×3 |
165 |
115 |
6-26 |
32 |
130 |
135 |
285 |
40 |
20 |
58 |
M64×2 |
165 |
115 |
6-26 |
32 |
65 |
M80×3 |
200 |
145 |
6-29 |
40 |
165 |
115 |
350 |
50 |
25 |
70 |
M80×2 |
200 |
145 |
6-29 |
40 |
80 |
M100×3 |
225 |
170 |
6-33 |
50 |
165 |
165 |
380 |